Mill Road, Over, Cambridge
Property Summary
Utilities & More
Utilities
Electricity: Mains SupplyWater: Mains Supply
Heating: Gas Central Heating
Sewerage: Mains Supply
-
Request a viewing
Request a viewing
Please complete the form below and a member of staff will be in touch shortly.
- Floorplan
- View Brochure
- View EPC
- Material Information
- Utilities & More
Key Features
Property Features
- 1700 SqFt Detached House
- Large Corner Plot
- Four Bedrooms
- Five Reception Rooms
- Two Bathrooms
- Double Garage & Driveway Parking
- Summer House
- Utility Room
- No Upward Chain
Property Details
Full Details
Over is a traditional village lying less than 10 miles north west of Cambridge, with good access via the A14 as well as the guided bus which has stops in neighbouring Swavesey and Longstanton.
There is a local post office/convenience store and a primary school, with larger shops and supermarkets within a 5 mile radius. Over is within the catchment area for the highly regarded Swavesey village college.
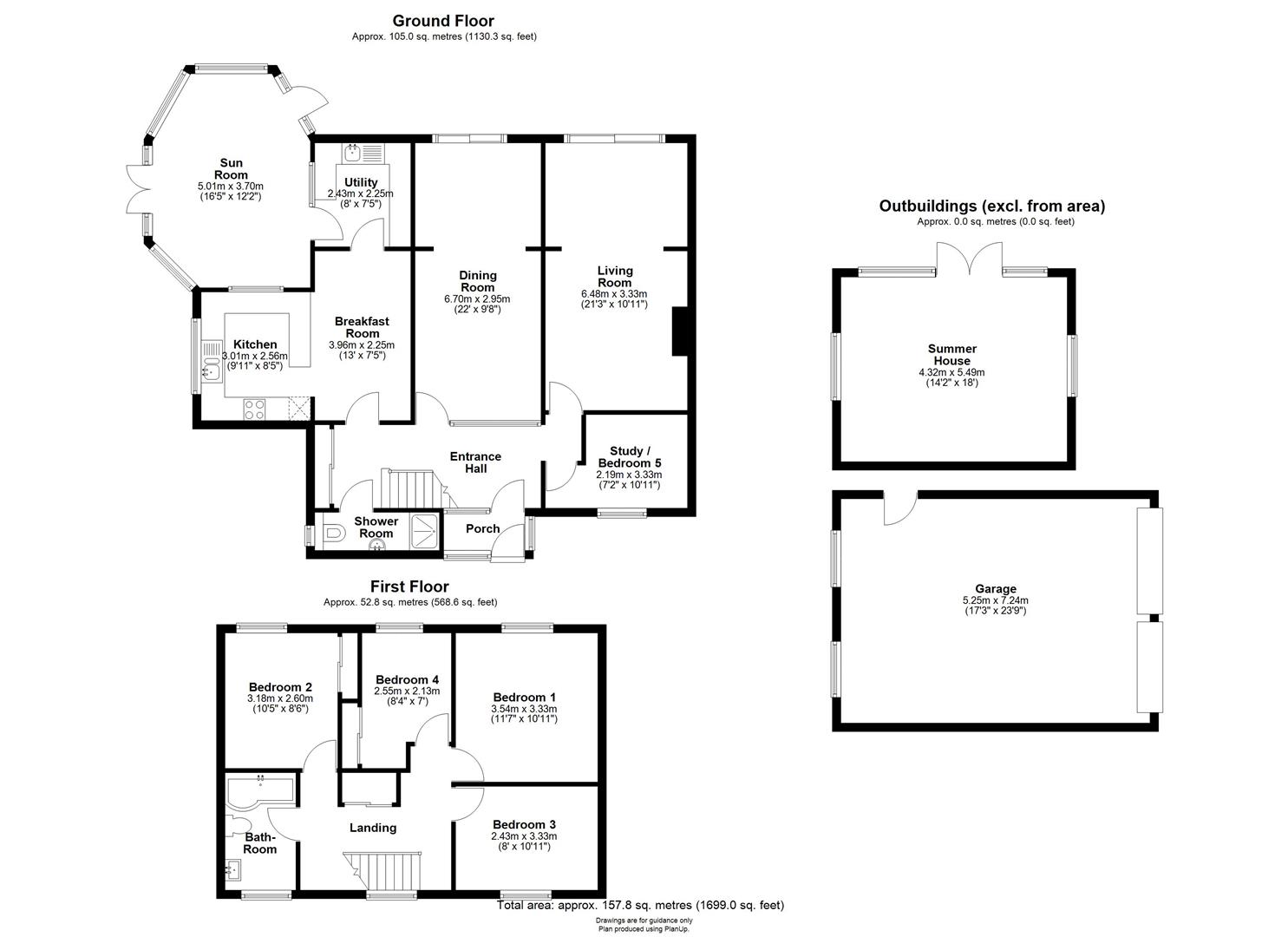
The property is a detached house, on a larger than average corner plot, with accommodation extending to around 1700 sq ft. There is significant potential to improve and enlarge further still, whilst there is no upward chain.
The entrance porch leads into a spacious central hallway which provides plenty of storage and has stairs rising to the first floor. A shower room leads off the hallway with a three piece suite and tiled walls and flooring. The kitchen/breakfast room comprises a range of wall and base units and there is ample room for a table and chairs. The utility room includes wall and base units, plumbing for washing machine and a wall mounted gas fired boiler. A door leads to the sun room which has a warm roof and offers panoramic views across the gardens. The spacious dining room includes sliding French doors to the garden. There is a large living room with a feature fireplace and sliding French doors to the garden. The study/fifth bedroom completes the ground floor accommodation.
The first floor landing has a loft hatch and airing cupboard housing the hot water cylinder. There are three good sized double bedrooms as well as a single room with built in wardrobe. The family bathroom has a three piece suite with shower over the bath and fully tiled walls.
Outside - There is a lawned frontage and driveway leading to the double width and length garage, which could fit four small cars.
The superb wrap around lawned gardens include established trees and shrubs and a large patio terrace. The substantial timber summer house measures approximately 18ft x 14ft.
Utilities & More
Utilities
Electricity: Mains SupplyWater: Mains Supply
Heating: Gas Central Heating
Sewerage: Mains Supply
-
Request a viewing
Request a viewing
Please complete the form below and a member of staff will be in touch shortly.
- Floorplan
- View Brochure
- View EPC
- Material Information
- Utilities & More
Featured Properties
Sell your property
Whether you are selling an apartment, mid terrace, development or anything in between, get in touch with our award winning sales team.

























































