Lents Way, Cambridge
Property Summary
-
Request a viewing
Request a viewing
Please complete the form below and a member of staff will be in touch shortly.
- Floorplan
- View Brochure
- View EPC
- Material Information
Key Features
Property Features
- Semi- detached 3 bedrooms family house
- Close to Cambridge North Railway Station
- Long south facing rear garden
- Studio
- Sitting/ dining room
- Kitchen
- Double glazed windows
- Gas fired central heating
- Off street parking and single garage
- Popular community based location
Property Details
Full Details
Lents Way forms part of a popular development close to the River Cam in the sought-after district of Chesterton, with a strong community feel. The location allows for easy access to the Cambridge North Railway Station as well as the city centre and science/business parks. There are several shops and supermarkets along the nearby High Street, as well as good local schooling, public houses and stunning riverside walks/Community gardens.
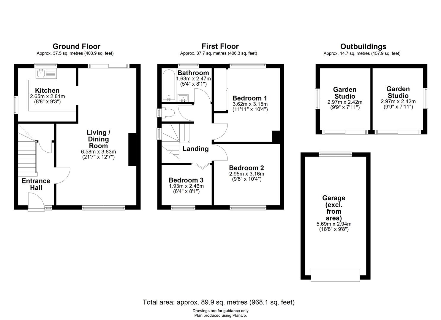
Accommodation in detail: Ground floor, UPVC front door to entrance hall with stairs to first floor, storage cupboard and radiator. Sitting/ dining room with living flame fire with slate hearth, patio doors to the rear garden, double-glazed window overlooking the front garden and radiator. Kitchen with a sink unit, range of wall and base units, plumbing for dishwasher and washing machine, electric cooker point, tiled flooring and double-glazed window overlooking the rear garden.
First floor landing, bedroom 1 with double-glazed window overlooking the rear garden, wardrobe housing Worcester Bosch gas-fired boiler serving central heating and hot water and radiator. Bedroom 2 with double glazed window overlooking the front garden and a radiator. Bedroom 3 with double glazed window overlooking the front garden and a radiator. Bathroom with panel bath with shower over, hand basin, extractor fan and radiator. Separated WC.
Outside is a good-sized front garden with a driveway and hedges. Side access to a single garage with electricity. The rear garden is larger than most with a southerly aspect, paved terrace, lawn, shed and established boundaries. At the bottom of the garden is a modern studio, divided into 2 offices with electricity and double-glazed patio doors.
Tenure: Freehold.
Services; Mains water, drainage, gas and electricity.
Council Tax; D
-
Request a viewing
Request a viewing
Please complete the form below and a member of staff will be in touch shortly.
- Floorplan
- View Brochure
- View EPC
- Material Information
Featured Properties
Sell your property
Whether you are selling an apartment, mid terrace, development or anything in between, get in touch with our award winning sales team.





















































