Kelsey Crescent, Cambridge
Property Summary
-
Request a viewing
Request a viewing
Please complete the form below and a member of staff will be in touch shortly.
- Floorplan
- View Brochure
- View EPC
- Material Information
Key Features
Property Features
- No onward chain
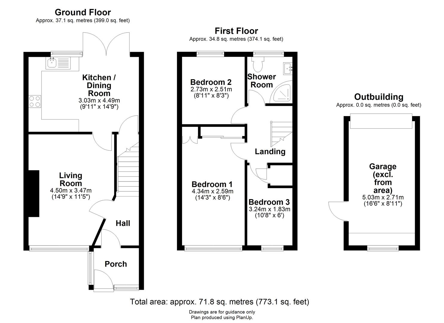
- 3 bedrooms
- 71.8 SQM / 773.1 SQFT
- Re fitted bathroom and kitchen
- Popular residential location
- Close to amenities
- Garage
- Double glazing throughout
- Gas central heating
- Good transport links
Property Details
Full Details
In brief, the accommodation consists of: A porch leads to a wide entrance hallway, with stairs rising to the first floor. The living room has wood-effect flooring and is a light and airy room with a large window to the front aspect. The re-fitted kitchen is modern in design, there is a range of matching cabinets and drawers, an integrated oven, a 4-ring hob with extractor above, ample work surfaces, an integrated dishwasher and fridge freezer, space and plumbing for an appliance, and an under-stair storage cupboard. There is space for a dining table and chairs, and patio doors lead out to the rear garden.
On the first floor, there are 3 bedrooms off a central landing with a storage cupboard. Bedroom 1 is a double, with a window to the front aspect and a built-in wardrobe. Bedroom 2 again is a double, and Bedroom 3 is a comfortable single. The stylish shower room has a shower, WC, hand wash basin, finished with floor-to-ceiling contemporary tiling.
Outside, the property is set back from the road, and a pathway leads to the front door. There is a garage and further off-street parking close by. The rear garden has a patio area; the remainder is laid to lawn. A pathway leads to the garage at the foot of the garden; a secure timber gate gives rear access.
Kelsey Crescent is located off Fulbourn Old Drift in an established part of Cherry Hinton with plentiful shops, supermarkets and amenities nearby. Both the Addenbrookes Hospital Biomedical Campus and mainline railway station are within 2 miles, and the historic city centre is around 3 miles. There is good schooling for all ages nearby, and transport links are well catered for with regular bus services and convenient access to the A14.
-
Request a viewing
Request a viewing
Please complete the form below and a member of staff will be in touch shortly.
- Floorplan
- View Brochure
- View EPC
- Material Information
Featured Properties
Sell your property
Whether you are selling an apartment, mid terrace, development or anything in between, get in touch with our award winning sales team.

































