Horseheath, Cambridge
Property Summary
Utilities & More
Utilities
Electricity: Mains SupplyWater: Mains Supply
Heating: Oil Heating
Sewerage: Mains Supply
-
Request a viewing
Request a viewing
Please complete the form below and a member of staff will be in touch shortly.
- Floorplan
- View Brochure
- View EPC
- Material Information
- Virtual Tour
- Utilities & More
Key Features
Property Features
- Substantial Detached House
- 5 Large Double Bedrooms
- 3 Spacious Reception rooms
- 4 Bathrooms
- Low Maintenance Garden
- Garage & Driveway
- Good Public Transport To Cambridge & Haverhill
- No Upward Chain
- Redecorated Throughout
Property Details
Full Details
Horseheath is a well regarded south Cambridgeshire village. It is served by a popular public house, post office/store, parish church and village hall. A larger range of facilities, including good schooling for all ages, are available in the nearby village of Linton and market town of Haverhill, both situated around 4 miles away. There are excellent road and bus links to Haverhill and Cambridge (which is around 10 miles away). Buses run, on average, every 30 minutes throughout the day.
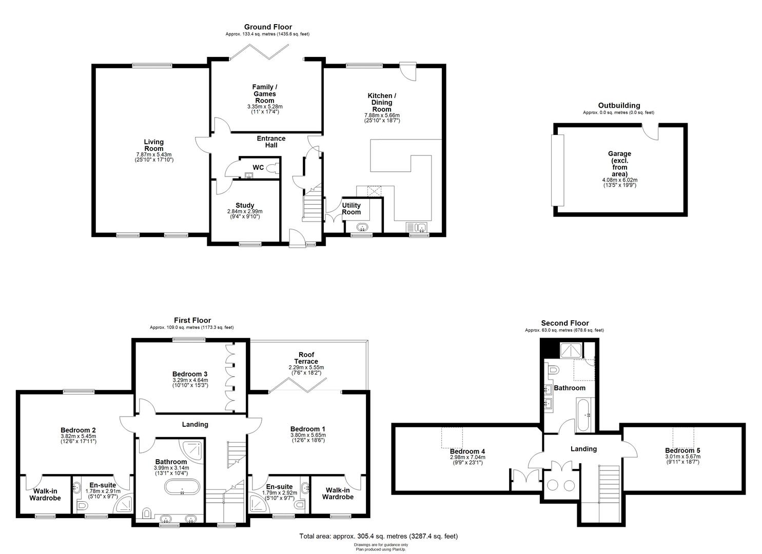
The property is a particularly spacious and light filled detached house built around 2015 and recently redecorated. With nearly 3300 sq ft of accommodation over three floors there are five double bedrooms, four bathrooms and three reception rooms, with good quality fixtures and fittings used throughout making it ideal for growing families. The low maintenance garden has recently been remodelled and there is a detached garage and driveway parking. Sold with the advantage of no upward chain.
The entrance door leads to a hallway with stairs rising to the first floor and under stairs storage. There is a substantial dual aspect living room, an office and family/dining/games room with bi-fold doors to the rear. The stunning kitchen/dining room features a vast array of bespoke solid oak cabinets teamed with quartz work surfaces and considerable breakfast bar peninsula in addition to integrated appliances including range cooker and dishwasher. The adjacent utility room provides further storage and laundry space as well as the oil fired boiler.
The first floor accommodation is equally impressive with three bedrooms and three bathrooms as well as stairs rising to the second floor. The beautifully proportioned principal bedroom suite includes a dressing room, ensuite shower room and superb balcony terrace offering fine views across the cricket field. Bedroom two is another sizable suite benefitting from dressing room and ensuite shower room. Bedroom three is a generous double room with built in wall to wall wardrobes. The extravagant family bathroom features a five piece suite with standalone bath, separate shower cubicle, twin vanity sinks and w.c.
The second floor landing has an airing cupboard housing two hot water tanks. There are two further well sized double bedrooms and an additional five piece family bathroom on this level.
Outside - There is a full width, private paved seating terrace to the rear of the house offering a good degree of seclusion in addition to a fenced lawned garden to the side.
There is a detached garage with power and lighting connected and ample driveway parking for two/three cars.
Utilities & More
Utilities
Electricity: Mains SupplyWater: Mains Supply
Heating: Oil Heating
Sewerage: Mains Supply
-
Request a viewing
Request a viewing
Please complete the form below and a member of staff will be in touch shortly.
- Floorplan
- View Brochure
- View EPC
- Material Information
- Virtual Tour
- Utilities & More
Featured Properties
Sell your property
Whether you are selling an apartment, mid terrace, development or anything in between, get in touch with our award winning sales team.











































































