Hope Street, Cambridge
Property Summary
Utilities & More
Utilities
Electricity: Mains SupplyWater: Mains Supply
Heating: Gas Central Heating
Sewerage: Mains Supply
-
Request a viewing
Request a viewing
Please complete the form below and a member of staff will be in touch shortly.
- Floorplan
- View Brochure
- View EPC
- Material Information
- Utilities & More
Key Features
Property Features
- Exceptional Period Semi-Detached House
- Sought After Location
- Three Storey Accommodation
- Four Generous Bedrooms
- Superb Garden Studio
- Rarely Available In The Area
- No Upward Chain
- Many Period Features
Property Details
Full Details
Hope Street is quietly nestled between Mill Road and Argyle Street in the heart of Romsey Town, offering easy access to all the independent shops and cafes Mill Road has become famous for. The mainline railway station is just a few minutes walk or cycle whilst the historic city centre is around 1 mile and the Addenbrookes Hospital Biomedical Campus around 2 miles. Residents of Romsey Town are spoilt for choice when it comes to local facilities and the area has a superb community feel.
The property is a stunning, period semi-detached house with incredibly spacious and well designed accommodation spread over three floors with the useful addition of a superb detached garden studio with power and heating.
Many period features have been retained and the house is being sold with the advantage of no upward chain.
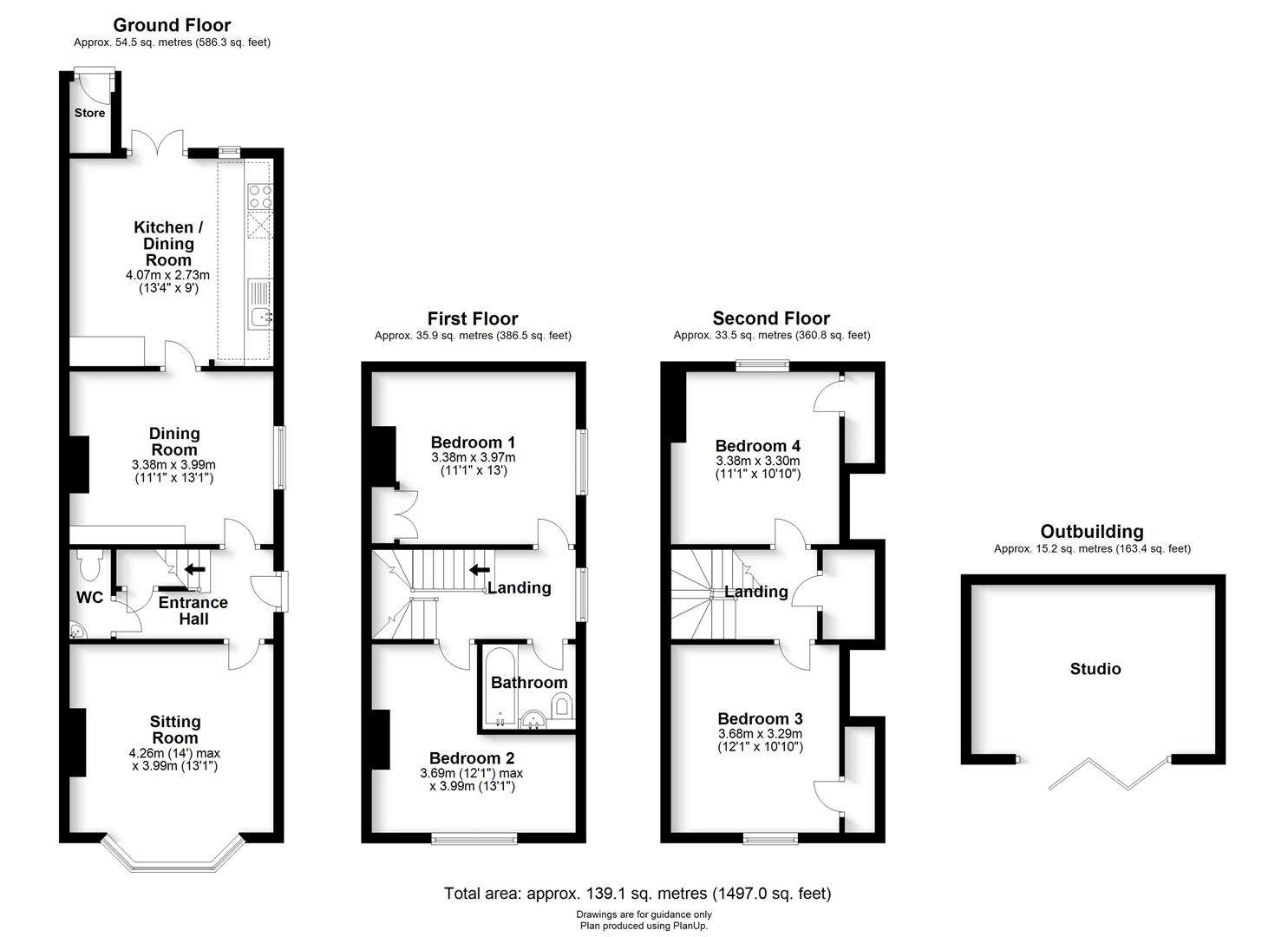
The entrance door is tucked away quietly at the side of the house, with an original stained glass panel, and leads to a hallway with quarry tiled floor and stairs rising to the first floor with a useful under stairs cupboard and cloakroom with w.c below. The beautifully proportioned living room is located at the front with a large bay window, period fireplace with alcove shelving and exposed wooden floor. There is a separate dining/family room with period fireplace and alcove storage to both recesses as well as exposed wooden floor and door to the kitchen. The kitchen/dining room is a light filled space running the full width of the house at the back with a partially glazed roof and double doors to the garden. There is a range of wall and base units and work surfaces with integrated electric oven and gas hob with extractor over, plumbing for washing machine and dishwasher in addition to tiled flooring and a concealed wall mounted gas fired boiler.
The first floor landing features a side window, stairs to the second floor and exposed wooden floor. The principal bedroom includes a period fireplace, built in cupboard and exposed wooden floor. The second bedroom is located at the front with a period fireplace and exposed wooden floor. The three piece bathroom has a shower over the bath with glass screen, w.c with concealed cistern and inset wash hand basin with cupboard under. There are part tiled walls and tiled flooring, air extractor fan and inset spotlights.
The top floor landing has a large built in cupboard and leads to both bedrooms on this level. Bedroom three is a generous double room at the front with a period fireplace, built in cupboard and exposed wooden floor whilst bedroom four sits quietly at the back, being another double room with built in cupboard and exposed wooden floor.
Outside - There is a lovely, low maintenance, private rear garden with a mix of paved and planted areas as well as a side access gate.
The detached studio is a fabulous addition with bi-fold doors, rooflights and wood flooring. There is electric heating and power/lighting.
Utilities & More
Utilities
Electricity: Mains SupplyWater: Mains Supply
Heating: Gas Central Heating
Sewerage: Mains Supply
-
Request a viewing
Request a viewing
Please complete the form below and a member of staff will be in touch shortly.
- Floorplan
- View Brochure
- View EPC
- Material Information
- Utilities & More
Featured Properties
Sell your property
Whether you are selling an apartment, mid terrace, development or anything in between, get in touch with our award winning sales team.















































